お問い合わせ番号:971
| 交通/所在地 | 価格 | 間取り | 建物面積 | 種別 |
|---|---|---|---|---|
近鉄橿原線/橿原神宮前駅 徒歩12分 奈良県橿原市栄和町 |
14,000万円 |
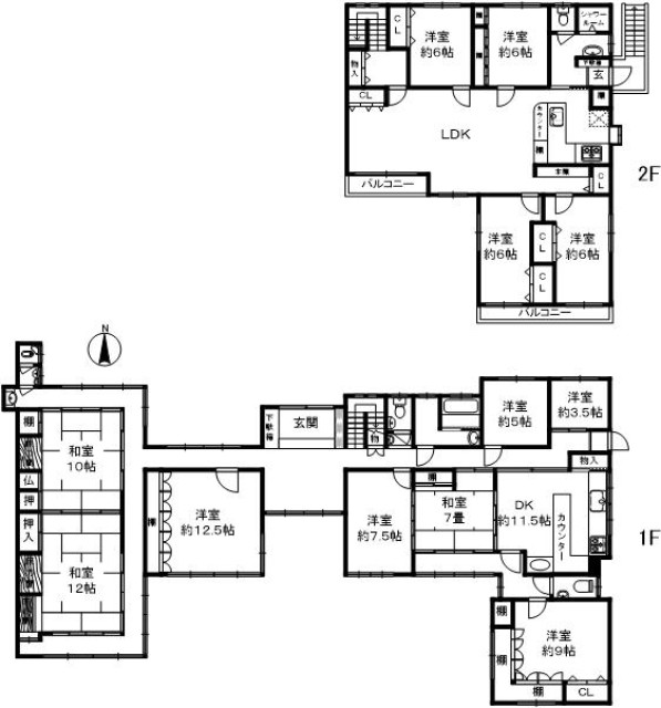
延べ 390.03m²/117.98坪 |
中古戸建 |
| 土地面積 | 公簿 1189.18m²/359.73坪 私道面積: | 建物面積(詳細) | 1F:280.28m² 2F:109.75m² |
建物構造 | 木造 地上2階建 |
|---|---|---|---|---|---|
| 築年月 | 昭和48年12月 | 間取り | 土地権利 | 所有権 | |
| 建ぺい率/容積率 | 60%/200% | 地目 | 宅地 | 道路/接面 | 公道/28.52m |
| 都市計画 | 市街化 | 接道状況 | 一方 | 用途地域 | 一住 |
| 接道方向(幅員) | 北側/道路:8.6m | 位置指定 | 駐車場 | 有 | |
| 取引形態 | 仲介 | 現況 | 所有者居住中 | 引渡 | 相談 |
| 設備など | 電気 上水道 下水道 都市ガス | ||||
| 周辺施設など | |||||
| 備考 | ※増築未登記部分有り | ||||
| 情報更新日 | 2026/04/17 | ||||





















