お問い合わせ番号:1012
| 交通/所在地 | 価格 | 間取り | 建物面積 | 種別 |
|---|---|---|---|---|
近鉄奈良線/近鉄奈良駅 徒歩10分 (その他)JR関西線 JR奈良駅より徒歩13分 奈良市北市町 |
7,500万円 |
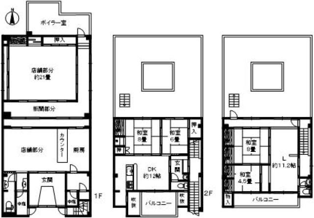
4LDK | 延べ 281.95m²/85.29坪 |
住宅付店舗 |
| 土地面積 | 公簿 314.71m²/95.20坪 私道面積: | 建物面積(詳細) | 1F:154.97m² 2F:65.05m² |
建物構造 | 鉄筋鉄骨コンクリート 地上3階建 |
|---|---|---|---|---|---|
| 築年月 | 昭和60年3月 | 間取り | 4LDK | 土地権利 | 所有権 |
| 建ぺい率/容積率 | 80%/342% | 地目 | 宅地 | 道路/接面 | 公道/11.1m |
| 都市計画 | 市街化 | 接道状況 | 一方 | 用途地域 | 商業 |
| 接道方向(幅員) | 南側/道路:5.7m | 位置指定 | 駐車場 | 無 | |
| 取引形態 | 仲介 | 現況 | 空家 | 引渡 | 相談 |
| 設備など | 電気 上水道 下水道 都市ガス | ||||
| 周辺施設など | |||||
| 備考 | ※別途、下記の建物があります。 ゝ鐶陝木造瓦葺2階建・延床面積114.67屐昭和33年12月建築 ∩匕法木造亜鉛メッキ鋼板葺2階建43.71屐γ枅月不詳 |
||||
| 情報更新日 | 2026/01/20 | ||||





















☆4LDK+店舗
☆土地 約95.19坪
☆船橋通り商店街近く
☆沢井病院 徒歩1分
☆近鉄奈良駅 徒歩10分
☆JR奈良駅 徒歩13分